Architectural Layout
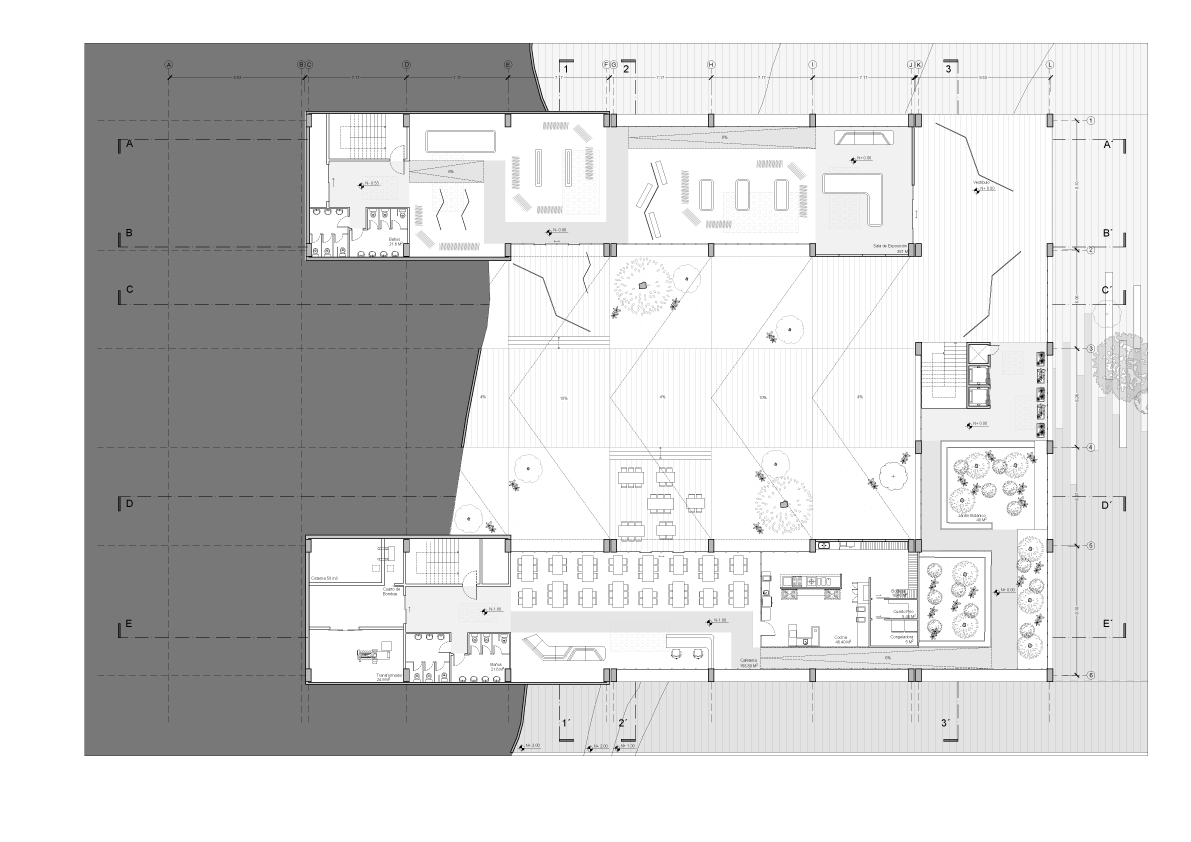
Ground Floor
The plans adapt to the topography of the place so they generate a user-friendly ramp circulation. Two plans are defined to distribute the necessary program mentioned above.
The ground floor houses the most public spaces, which are directly related to the central patio. The circulation that connects them is characterized by being dynamic with its surroundings and adapting according to the function of each space.
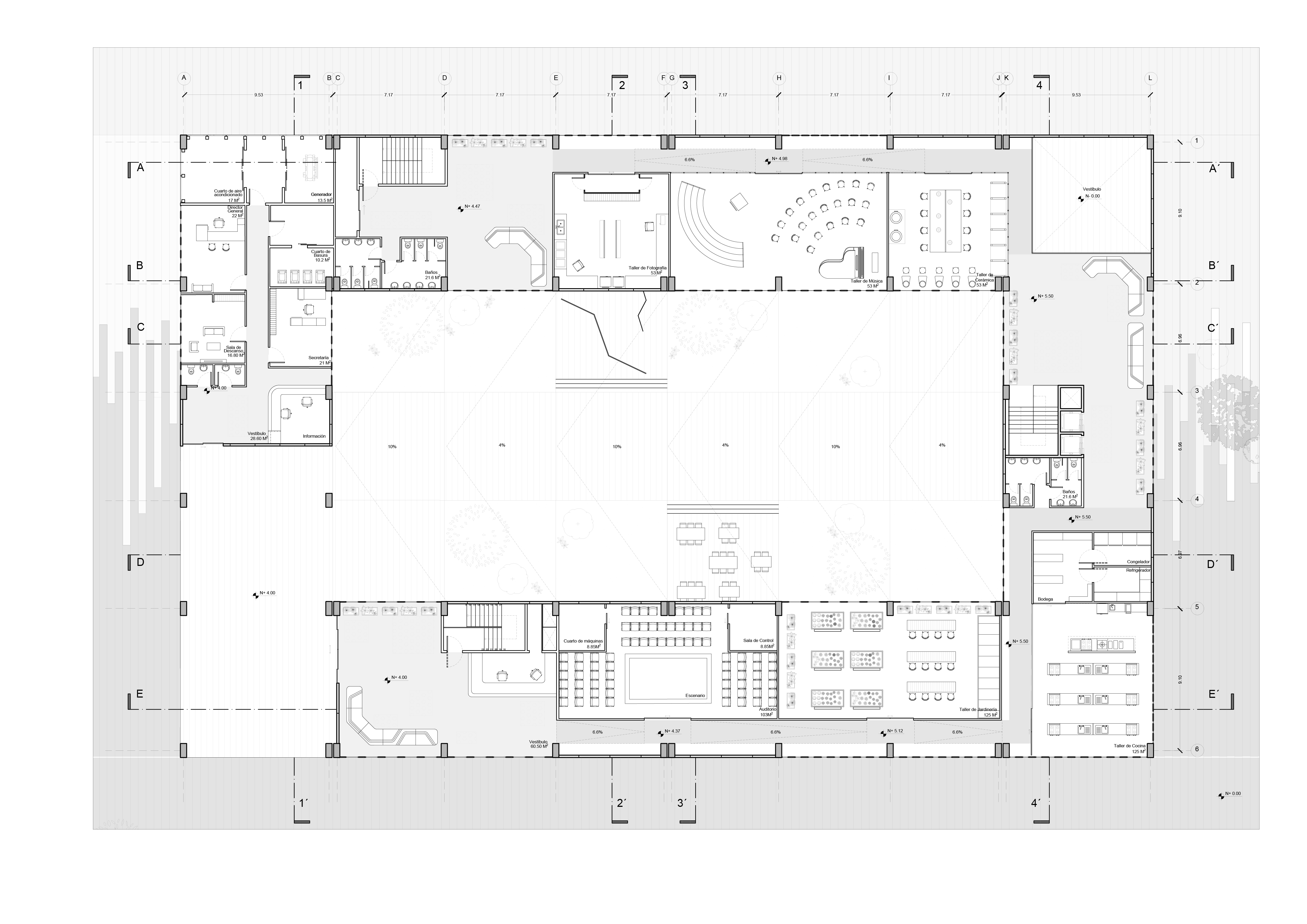
First floor
The upper floor, on the other hand, contains the most private activities such as workshops, the circulation surrounds them creating an indirect connection.
Both characteristics of the plans can be verified on the facades where they react according to their function with different window modules.
Facades


Sections

CONSTRUCTIVE DETAILS
Material description:
A concrete arcaded structure will be used reinforced, with concrete with a compressive strength of 210 f’c. The maximum lights of the project contemplate 9.35 m, and 4.30 m overhangs, they will also have a maximum of two floors with level + 10.00 m.
Description of structural systems selected:
Vertical resistance systems: Columns will be used and reinforced concrete beams, secondary steel joists in I of 35cm of superelevation, complemented with a slab type deck and insulated footings.
Lateral resistance system: Walls will be used containment in the buried parts of the ground floor, which will be separated by 5 cm from the columns to avoid forces cut in case of seismic risk. This will be connected with running shoes.
Additional precautions
• Constructive meetings will be implemented in 6 blocks to avoid twisting in the plan and to avoid the short column effect as the plants are designed on-ramps.
• In the buried part, a wall of 5 cm separates containment from the columns.
Structural Details















Leave a comment